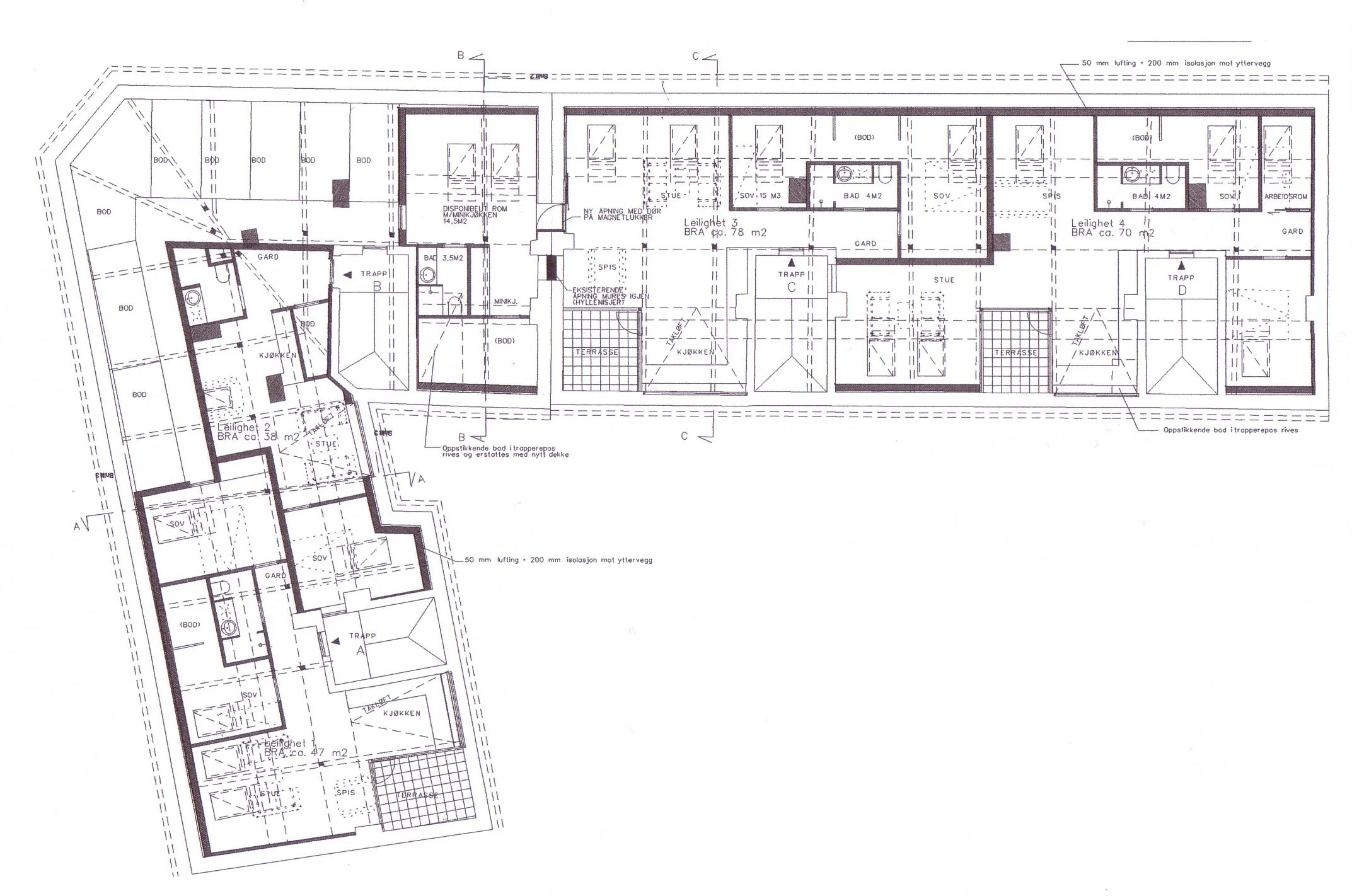
Loftsutbygging Dælenenggata 38
4 Nye loftsleiligheter
Ferdigstilt 2006
Sted: Oslo
Oppdragsgiver: Privat utbygger
4 nye leiligheter i råloft.
Innvilget rammesøknad 2005, ferdigstillt 2006
Loftsutbygging Dælenenggata 38
4 Nye loftsleiligheter
Ferdigstilt 2006
Sted: Oslo
Oppdragsgiver: Privat utbygger
4 nye leiligheter i råloft.
Innvilget rammesøknad 2005, ferdigstillt 2006