Guggenheim Helsinki

Kunstmuseum
Arkitektkonkurranse 2014
Sted: Helsinki, Finnland
Oppdragsgiver: Guggenheimstiftelsen

Alvar Aalto-stol som ble brukt som inspirasjon i materialvalg

Guggenheimstiftelsen er kjent for flere fantastiske museumsbygg rundt om i verden, blandt annet i New York og i Bilbao. Da de planla å bygge et nytt museum i Helsinki,
utlyste de i 2014 en åpen arkitektkonkurranse om utformingen av det nye museumsbygget

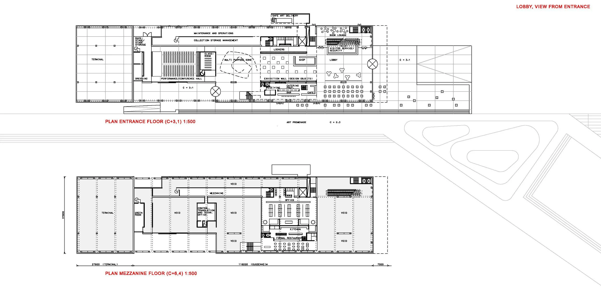
Vårt forslag tok utgangspunkt i en enkel og rasjonell struktur som formalt delte publikumsarealene/administrasjonen og utstillingssalene i henholdsvis en
basebygning og et tårn.
Et av flere vurderingskriterier i konkurransen var energi og miljø, og gjennom konkurransesamarbeidet med Asplan Viak fikk vi til et prosjekt som har et
beregnet energiforbruk på kun 33kWh/m2 pr. år!
Prosjektet tok arkitektonisk utgangspunkt i en videretolking av den historiske havnearkitekturen vi finner langs kaia i Helsinki der tomten ligger. Den enkle
og rasjonelle modulbaserte bygningsoppbyggingen består av kun glass, tre og lys betong. Dette gir en enkel og lys bygning med mange kvaliteter både i
interiør og eksteriør, og et arkitekturhistorisk slektskap til "Scandinavian Design"-perioden.

Med 1715 innleverte forslag var dette den største arkitektkonkurransen av sitt slag noen sinne i verden. Etter konkurransen skrinla stiftelsen prosjektet grunnet mye lokal motstand i Helsinki.

Størrelse ca 12 000 m2

Vårt team besto av :

- siv.ark. MNAL Per Martin Landfald (PML Arkitektur as)
- siv.ark. MNAL William Fairminer (PML Arkitektur as)
- M.Sc. Geir Tore Møgedal (Asplan Viak)
- M.Sc. Per F. Jørgensen (Asplan Viak)

Forrige
Forrige

Våler kirke

Neste
Neste

Villa Gregertsen, Hokksund